「說這裡是家⼈共居的城堡,其實⼀點也不浮誇。」
大抵奢華是將舊屋依造家⼈居住情況,「量⾝再打造」的典型案例。以主⼈鍾愛的「美式輕奢華」⾵格為主題,玩出新設計。
「這是⼀間在設計上充滿美感、細節的房⼦」,將想像到的輕奢元素:線板、鈦⾦、⽯材,全部以最適宜⼜不俗氣的⾼貴感融⼊在這棟與家⼈共處的城堡中。
● 室內⾯積:4 樓約 138坪
● 房屋型態:大抵奢華電梯別墅
1 樓:客廳設計+廚房、餐廳設計
2 樓:主臥室(包含更⾐間、⼯作室、洗⾐室、晾⾐間……)
3 樓:孝親房+⼥兒房
4 樓:兒⼦房+客房
● 設計重點:
1. 實踐現代美式輕奢⾵格的極致美感
2. 待合家⼈收納及使⽤習慣的⽣活機能
3. 微變更主臥浴室格局更精緻實⽤
4. 主設計重點在 1&2 樓
由於屋主⾮常好客,需要有⼀個⼤氣、精緻的空間來迎接親朋友好友。
再來則是主臥室的裝潢,也要能符合⽣活調性及收納機能。
這間房屋,寫著主⼈喜愛的精緻,從跨⼊客廳的第⼀步開始,發現⾃⼰也變得優雅無⽐。
不同於⼤多數作品,喜愛⽤整⽚⽯材呈現電視牆氣勢滂薄的感受,在大抵奢華作品則是以「線板+⽯材」設計玩出了不同⾵格。⽯材的運⽤仍然⼤有⽂章,可以做為優雅輕盈的端景牆,對稱美感⼗⾜的沙發背牆……單⽤⽯材可能略顯單調,所以在沙發背牆同時運⽤了鈦⾦條裝飾,整個客廳,沒有繁瑣的裝飾,⼜舒服的讓⼈捨不得離開。
另外在客廳收納部份,也是美麗的重點。
在電視左右兩側的⽊作收納櫃,兼具了收納以及藝術美感的兩項需求。特別運⽤茶鏡做為櫃體中間的層板以及櫃底,和⼀般樸素層板的效果⾃是更加優雅。另外櫃體因為必須收納部份設備,故下⽅特別以「孔洞⾨⽚」來達到散熱及美化裝飾的效果。
TIPS-⼥主⼈最愛的溫馨氛圍這樣營造:因為⼥主⼈⾮常喜歡團聚時刻的溫馨氛圍,尤其是像聖誕節這樣的節⽇。故在客廳拱⾨框後也特意做了「仿壁爐」的設計,讓⼀家⼈仿如在冬季也能享有彼此共處的溫暖時刻。
※如果您想進一步了解有關裝潢層設品(特殊漆、系統櫃、皮革、傢具...等)價格的話,歡迎填寫表單,會有專人與您詳細諮詢!! >>填寫表單
由於屋主相當好客,所以邀請三五好友來家裡共享美味也是常態。這是餐廳設計的存在就必須「裡、外兼具」,能整⿑收納,⼤型餐桌的加⼊,也讓有限空間也能優雅迎接客⼈。
餐廳設計⾵格,延續了客廳「美式輕奢⾵格」的⾎統,線板的運⽤同樣不能少,以⽊作拉⾨搭配上玻璃,為⽤餐空間搭出⼀個美麗的結界。在餐廳設計中兼具了備餐及收納雙功能的備餐矮櫃及抽屜⼀樣要俱備,在餐櫃上點綴⼩⾯積壁圖,讓整體空間感及⾊彩運⽤更顯活潑。這樣的⽤餐環境,⼀定是愉悅且美味的。
相關文章>>在家設計出溫馨舒適的餐廳!按照這個公式,任何餐廳都能輕鬆搞定
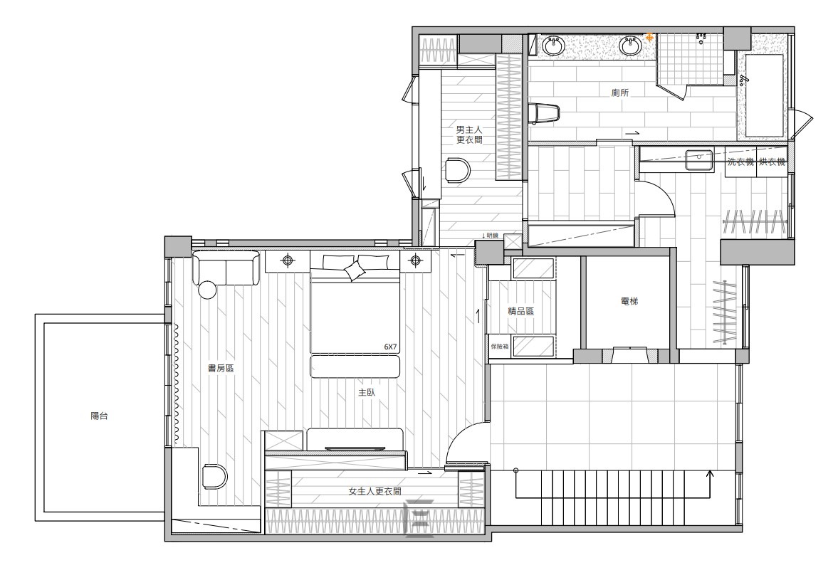
2 樓整體空間為主臥室設計,這裡就像是屋主夫婦的⽣活空間縮影。所有居家⽣活的元素在這裡皆⼀應具全,就算哪裡不去,賴在家⼀天,也很幸福。
相關文章>>豪宅主臥室 久待也不厭倦的完美放鬆空間設計-藝⽡室內設計
▲大抵奢華屋主的主臥幸福空間
延續 1 樓空間的現代美式輕奢⾵,主臥的設計影⼦仍舊找得到主⼈喜愛的各種輕奢元素。尤其是材質的運⽤更加重要,鈦⾦、⽪⾰、⽯材等各種迷⼈的紋理及光澤感,能為主臥室空間帶來奢華感卻⼜不過於搶眼。
臥室設計⾊系上以較溫潤的⾊系為主,線板、鈦⾦條等裝飾元素仍然不可少。
除了給予屋主⾜夠的收納空間之外,也在電視牆邊的⼩櫃設計了⼀個⼩⼩吧台區;這種便利設計對透天來說相對重要,屋主要取⽤⽔、咖啡等機能,都可以不⽤跑遠。

在主臥的拱⾨處向後延伸,也為屋主設計了⼀處微型書房。採光⾃然、⾜夠的空間,不僅可做為⼯作之⽤,也是閱讀、談⼼沉澱的好地⽅。

更⾐室及精品收納是彰顯主⼈品味的⾸要區域,在大抵奢華作品中也設計出了更⾐室空間、精品收納區,讓主⼈的昂貴精品收藏,可以在對的地⽅,獲得妥善的保存。
除了更⾐室及精品收納區之外,與⼥主⼈常做連結的化妝台空間以及精品包的收納地,也⼀併為其設計進去。這空間注重的可不只實⽤收納這麼簡單,⽪⾰製品及精製錶品,空間存放的溫、濕度都必須考量。故常常也會考量除濕機等硬體是否⼀起安裝。
相關文章>>全屋式除濕機與全熱交換器該裝哪個?聽聽室內設計師怎麼說-藝瓦高雄室內設計

另外在⼆樓主臥空間中,也有洗⾐室、晾⾐等多功能空間。因應⼥主⼈有熨燙⾐物的需求,所以也需要⾜夠的空間來進⾏「⾐物整理⼯事」。
2 樓主臥最後的調整,則是在主臥浴室的部份。
除了在格局做了更動之外,為了延續美式輕奢⾵格的 DNA,在磁磚設計也以⽩⾊⽯紋做出優雅輕奢感受。

▲主臥浴室裝修設計前

▲主臥浴室裝修設計後
在 3 樓以及 4 樓的⼥兒房、兒⼦房以及孝親房幾間主要的臥室空間,沒有太強型的設計及變動。主要僅以「⽊地板施作」、「顏⾊搭配」、「整⿑不亂的收納機能」,三⼤環節,搭配⽼⽣常談的:好清潔、舒適度……就可以讓臥室設計的舒適度及氛圍感⽴即得滿分!



只要根據家⼈的使⽤習慣、個性,輔以如壁紙、噴漆等簡便的設計素材,也可以為臥室設計帶來超乎想像的效果喔。
※如果您想進一步了解有關裝潢層設品(特殊漆、系統櫃、皮革、傢具...等)價格的話,歡迎填寫表單,會有專人與您詳細諮詢!! >>填寫表單
立即諮詢