老屋翻新【改造細節篇】立大路樓中樓舊屋翻新

高雄樓中樓老屋翻新,老屋空間設計新靈感!

原本乏人問津的20年老屋,翻新後再轉售,竟然成為熱門人氣王?!
在翻新前,賣了一年多,還是無人問津;協助老屋全面性的健檢及翻新整修後,不到一個月,立大路老屋就成為了搶手的人氣王,並且很快就為它找到了新屋主。


※如果您想進一步了解有關裝潢層設品(特殊漆、系統櫃、皮革、傢具...等)價格的話,歡迎填寫表單,會有專人與您詳細諮詢!! >>填寫表單

 

室內設計公司的老屋翻新健檢清單

軟、硬體老屋翻新全改造 多年老屋問題都解決
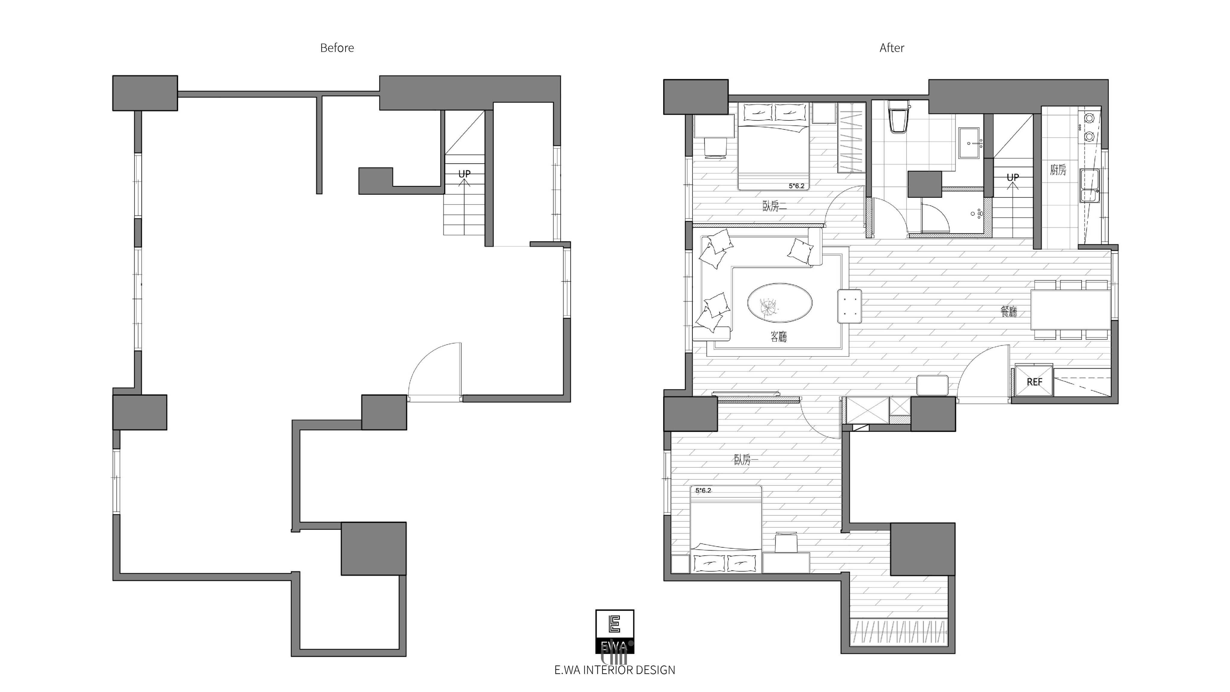
藝瓦高雄室內設計,將4房2廳樓中樓房型的大樓老屋,做了全面性健檢及翻新。在這作品中,針對全室水電管路、隔間調整、地板重整以及衛浴防水改善做了許多功課,努力讓老屋回歸到最好的條件。

1F設計 Before & After

 

 

2F設計 Before & After

 

 

老屋翻新安全為首要 室內管線更換有學問


二十年以上的老屋,最常碰到的是室內管線過於老舊的問題。水、電、瓦斯等管線問題,將直接關係到居住安全問題,這筆預算千萬不能省。

 

廚房設計改頭換面 全室水電管路更新


在廚房設計方面,老屋面臨最大的問題,就是管線堵塞及過於老舊。加上早期的線路設備,與近代多複雜度高的電器使用較不合用;廚房設計的重點,就首要解決管路問題,符合電器使用,安全性也足夠,並將不合時宜的老舊電器汰換更新。

廚房設計 Before & After

 

衛浴設備空間設計更新 隔間變更改善漏水問題


原本樓下的廁所並沒有淋浴設備且有漏水問題,透過隔間的調整,除了樓下公共衛浴空間看起來更大,也獨立出淋浴設施,讓家人使用更方便。
另外也將防水、管路設施、老舊磁磚也一併更新,讓整體衛浴明亮,乾淨,如同新屋一般。

衛浴設計 Before & After

 

玄關設計與客廳設計融合放大 空間設計方正又寬敞


原本的玄關設計、客廳設計及客廳後方獨立工作空間,在各自切割後,反而每處都顯得狹小、擁擠。在此區域中,先將玄關、客廳及原本工作區域整合為一,感受上變寬敞,也重現房屋方正的格局,空間運用上也更彈性,再趁此修正了室內空間高低不平的問題,讓行進動線更順暢。

客廳設計 Before & After

 

臥房設計回歸方正格局 空內空間更好運用


臥房設計中,不需要特意再做傢俱,改善重點是將空間格局回歸方正,在布置上就顯靈活。
變動較大的是在樓上的原2房臥室,由於樓下也有房間,設計師使建議將樓上空間打造為主人專屬區域,其中一間臥室變成了書房設計;也將衛浴設備納入臥室內變成套房,讓主臥的生活機能更完整。

臥室設計 Before & After

 

石塑超耐磨木地板 老屋地板翻新超高CP值

老屋原樣中,室內是舊有的實木地板,經拆除後,讓整個地面回歸到平整狀態。由於考量大樓老屋不宜做太多打除,除了有噪音問題,對主題結構也怕造成較大負擔。各種考量下,最後選用了全面防水型的石塑超耐磨木地板舖設,具有輕薄、全面防水、施工容易且價格親民的各種優勢,是老屋翻新地板舖設不錯的選擇。


※如果您想進一步了解有關裝潢層設品(特殊漆、系統櫃、皮革、傢具...等)價格的話,歡迎填寫表單,會有專人與您詳細諮詢!! >>填寫表單

 

室內空間硬體細節設計更新 換得老屋翻新舒適樣貌

由於室內鋁窗為二十年前的樣式,且結構較薄,厚度及防水高度已不符使用,在大雨及颱風天易滲水且隔音較差。為了讓新屋主擁有無後顧之優的居住環境,全屋改新型鋁窗防風防水,也思考到門戶安全,將大門一起換新。

在室外露台部份,由於考量全面翻新地面及防水會造成預算超支。經過診斷後也了解屋主預算考量,壁面防水功能尚算完整,故只更新地面防水跟磁磚,一樣能在有限預算上,解決露台的漏水問題。

 

老屋翻新交給專業室內設計公司


一般人聽到老屋翻新,總是擔心工程浩大又傷荷包。建議您不妨可以交由專業高雄室內設計公司為您做「老屋翻新全健檢」。該保留?該翻新?為您做全盤的規劃,讓老屋變新屋,不管是轉售或是自住,皆可依需求為您健檢老屋體質,量身規劃。

 

【老屋翻新作品欣賞】

高雄漢慶街老屋翻新

高雄鳳山工協眷村大樓老屋翻新

高雄復興路40年老屋翻新


相關文章欣賞

老屋翻新【改造細節篇】- 鳯山工協新村舊屋翻新

老屋翻新【改造細節篇】- 京城鉅誕二手舊屋翻新

老屋翻新【改造細節篇】- 40年舊屋翻新-復興路案


相關影片:【復興路26年老屋翻新】施工秘訣篇:3D設計圖分享|退休宅的無障礙浴廁規劃|木紋磚取代木地板|工地出現臨時馬桶?!




相關影片:【施工秘訣篇】咦?天花板在漏水!冷氣配管方式大公開|EHO邑合室內設計


2022-06-23
立即諮詢