完整作品欣賞:漢慶街老屋翻新
從人間美術、美術之星,再到白玉岸7樓及8樓,這幾件出眾的作品,來自於同一個客戶;幾度的合作,都是由藝瓦一手設計、催生,再把屋主送進專屬、舒適的家。
漢慶街老屋相較於前幾個作品,意義又不相同。這次老屋翻新改造,要為這棟約4層樓高,建物面積80~90坪左右且是父母親居住已久的老屋,進行一、二樓的翻修。需考量更多的是如何將透天厝機能和長輩生活結合,加強便利性;並且能夠在重要節日家人齊聚之時,讓每位家人都倍感溫馨、舒適。
※如果您想進一步了解有關裝潢層設品(特殊漆、系統櫃、皮革、傢具...等)價格的話,歡迎填寫表單,會有專人與您詳細諮詢!! >>填寫表單
1F設計 Before & After

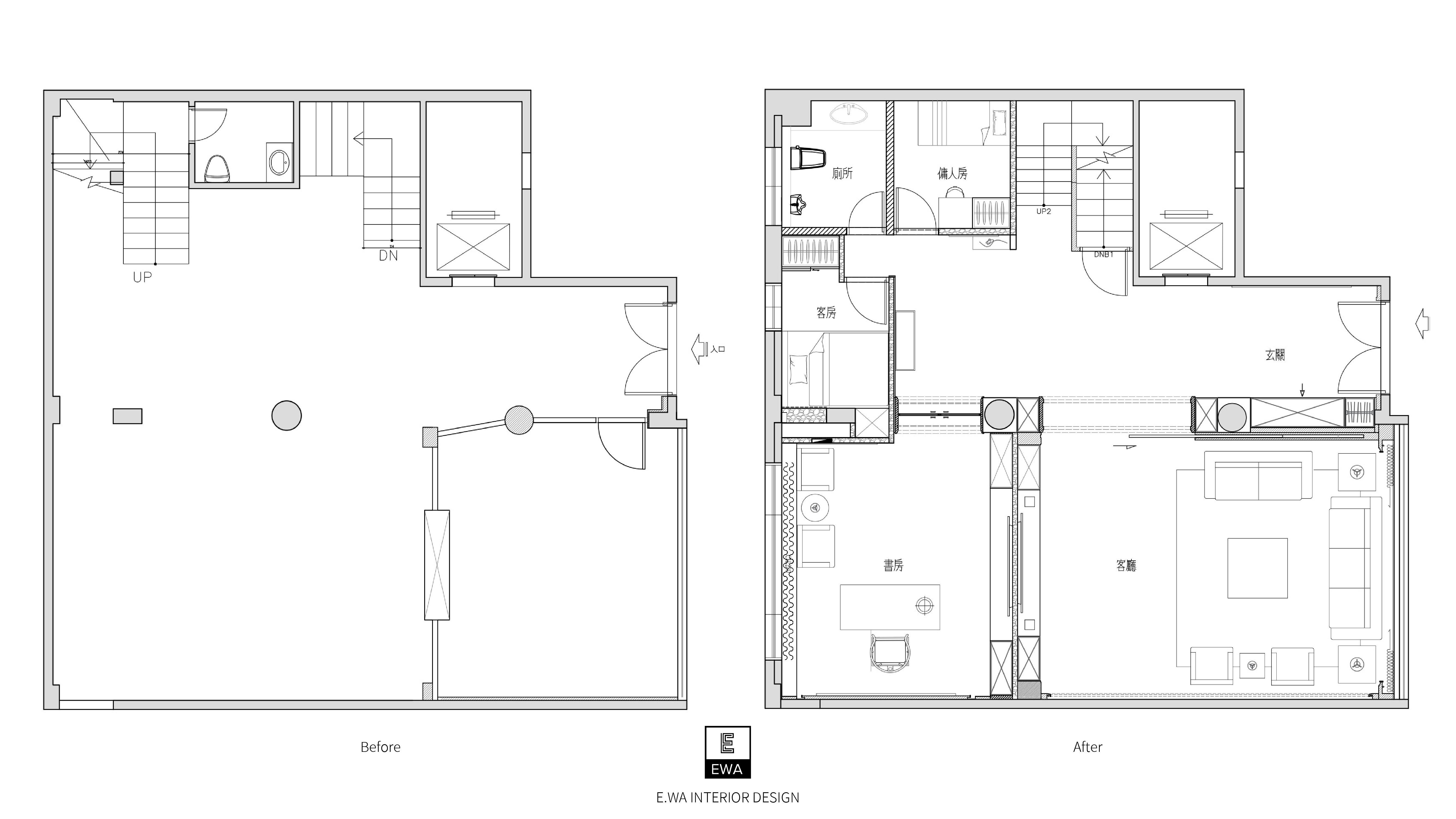
2F設計 Before & After
在與屋主深談後,將以一、二樓最重要的生活空間,改善關鍵問題:
1.老屋空間高低不平,長輩生活不便。除了滿足屋主委託的基本需求,藝瓦高雄室內設計也為老屋進行了全面性的翻新健檢,一起來看看老屋怎麼變身新宅的清單吧!

漢慶街舊屋翻新清單
原本梯的設計在建築物的後方,故比較狹小幽暗,後來考量改裝需求,改到電梯邊和梯在一起,讓整體動線更流暢。
設計簡單延續房子尊榮的灰色調,以安全考量為主,做出簡約大氣的感受。

樓梯設計 Before & After
原廁所位置小也不合宜,故位置更動,另外切割外牆搭配大窗讓空氣流動性更佳。
也由於家庭人口多,在公共衛浴中空間需要再加大,並將男女的使用設備貼心分開規劃。
整體以明亮、乾淨、方便使用為主軸。
浴室設計 Before & After
原本狹小陰暗的廚房,也隨之移到客廳填平的部份新做增建。
增建後不僅變得寬敞,空間上還能規劃熱炒區、半開放式輕食區,廚房中島設計。
良好的動線規劃,即使讓家人齊聚也沒有擁擠的感覺。
更別忘了還有可以容納家庭70~80位成員的餐廳設計。
現在,不僅讓料理有好的品質可以讓家人享受溫馨互動,再多人一起享受美味時光也沒問題。

改造後空間設計總體被放大,三代同堂70幾位家人歡聚在一起也沒有問題,一樣寬敝舒適不擁擠。
除了家人們彼此交流聯繫情感的客廳設計,還有獨立的起居室設計,讓大人、小孩可以在自己的專屬空間裡放鬆。
在每個空間設計了拉門,讓各空間彼此開放卻又隱密,也可以透過拉門節約冷氣,自在生活。

起居室設計 Before & After

說到喜好,更不能忘記屋主的夢想的「視廳室」。
早期的空間較凌亂無章,屋主沒辦法將寶貝收藏一一展示。現在不一樣,在視廳室裡,可以安心的陳列音響,並擁有獨立空間,不僅可以與好友聚會相邀共賞,也能安靜自在聆聽絕佳音質不被打擾。
相關文章:空間設計色彩配置一次就上手(一)
※如果您想進一步了解有關裝潢層設品(特殊漆、系統櫃、皮革、傢具...等)價格的話,歡迎填寫表單,會有專人與您詳細諮詢!! >>填寫表單
老屋翻新自住&轉售細節文章:
老屋翻新【轉售篇】- 舊屋自住翻新、翻修一定要知道的事
老屋翻新【自住篇】- 老屋自住翻修一定要知道的事
相關影片:3分鐘認識輕隔間灌漿與施工學問大公開|EHO邑合室內設計
相關影片:什麼 !? 浴室降板區及管線竟然要注意這些 !
立即諮詢