
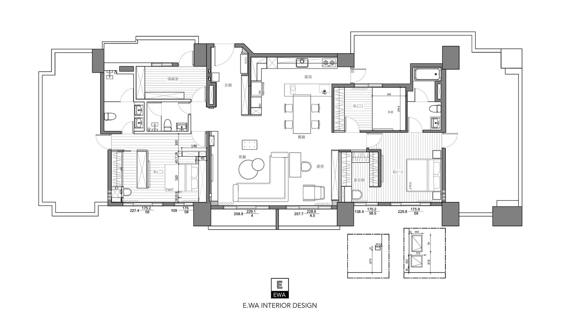
原始屋況平面配置圖(下滑至底部可查看設計後規格平面配置圖)
「原本不存在的玄關設計格局,是屋主最擔心的部份。完成後,屋主都滿意到覺得我們變了一場魔術。」
在玄關設計上,我們在原有格局上打造玄關設計的空間,將其拉長,迎賓氣勢及空間轉換的氛圍感更加強烈。
玄關我們最重視的收納及實用性,一樣也沒少,標配的穿鞋椅以及強大的收納櫃讓鞋及回家的雜物「物歸原所」。
即便玄關設計為室內室外的重要轉換空間,仍保有整齊、乾淨、舒適的感受。迎接家人及賓客回來的第一時間,令人放鬆的幸福感由然而生。

延伸閱讀:【室內設計】簡約客廳裝潢指南
※如果您想進一步了解有關裝潢層設品(特殊漆、系統櫃、皮革、傢具...等)價格的話,歡迎填寫表單,會有專人與您詳細諮詢!! >>填寫表單
做為家人相聚的渡假宅,開心笑語搭配美味佳餚是最幸福的畫面。
在原本格局中強化了廚房及中島設計機能,讓原本廚房設計中機能及設備不足的情況獲得改善。
擁有海量的收納機能,連冰箱這種大型家電也能放置到2台。
特別是其中一台為嵌入式冰箱,這樣的設計,不但發揮擺放收納的機能,也不因海量收納而使廚房看起來有壓迫感。
特別一提的是中島設計,將原本人造石的中島接合加長,既符合預算又相當實會,達到屋主的要求並為空間感完全加分,接合處也十分完美。
拉長中島後,意想不到廚房變得更顯氣派,搭配壁板設計,讓空間表現更開闊、更溫柔了。

充滿現代簡約風格的客廳設計,由俐落線條點綴的挑高無壓迫天花板,也是一大亮點。
客廳設計就是家人歡聚交誼的場域,挑高天花板搭配明亮、溫馨的間接照明,讓整體看起來更舒適、溫馨。
電視牆的設計也同樣吸睛,不只是單純的牆面設計,右手邊也多設計了展示櫃的功能加以點綴,有了展示及藝術品的陪伴,電視牆面看起來更活潑有趣。


客廳後方,也有局部開放式的書房書櫃設計。 簡單大器的空間,以多達六種配色的書櫃作為多功能展示櫃,讓一向走實用派的系統櫃變身為精品時尚書櫃。
延伸閱讀:系統櫃也能成為精品設計?一窺藝瓦高雄室內設計總監李淑惠的創意思維
舒適的臥房設計,軟裝設計加入是打造氛圍的重要功臣。
男主臥室,以冷色系為主調,打造不凡的現代時尚感。
以造形板石紋電視牆搭配藍綠色的軟裝,所有的衣櫃都是選用系統櫃材料,這樣面面俱到的搭配,充份展現硬裝設計及軟裝設計的重要性,兩者是如此密不可分。

在更衣間的部份,屋主非常重視收納功能,而系統櫃在此處的靈活運用,更是讓更衣間有了新氣象。
此處設計以清水模淺灰門片,搭配黑色鋁框的特殊造形板,還有高達七種配色及多材質的大膽混搭。
將這些創意合在一起,讓更衣間設計活潑時尚又不失穩重感,也能融入自己獨一無二的生活品味。

將系統櫃昇華成為床頭櫃設計,也能一樣做到時尚不失品味!
整體以淺色木質地板打造溫馨感,色調再搭配米色及灰褐,暖暖的色系舒適感受立即加滿分。
溫馨提醒:若是床頭櫃想選擇系統櫃,要非常注意尺寸比例,還有配色的氛圍及活動床架尺寸的關係;當然還有使用上的方便性也不可忽視。
床組兩側的開放空間及櫃體插座、睡前的床頭燈及所需的充電設備等細節缺一不可,在這設計中皆一一被滿足了。
「軟裝也是整體設計加分的重要環節。」女主臥房採用最受品味女性歡迎的奶茶色系統櫃加上Tiffany藍垂地窗簾,讓整體空間優雅又和諧。

除了休息空間外,也設計出了女主人專屬的更衣室設計,將自己的衣著及精品品味一一收納,將機能全然客製,打造細心貼心的所有細節,形成自己獨一無二的時尚空間。

延伸閱讀:化妝台在室內空間的絕佳位子(上) - 藝瓦室內設計
※如果您想進一步了解有關裝潢層設品(特殊漆、系統櫃、皮革、傢具...等)價格的話,歡迎填寫表單,會有專人與您詳細諮詢!! >>填寫表單
雙面系統櫃的作法,滿足了屋主不希望入門太凌亂,但又必需具備收納的雙面功能性。
在靠床的方向,同樣期待能放幾本喜歡的書本,雖然在床邊安排了櫃子置放放物品,但又不會有壓迫感。
更重要的是選用全系統櫃的材料完成,兼顧預算及美觀,同時達成兩個設計:「美觀、實用」的重要目標。


坪數:權狀84坪/ 室內55坪
建材:木皮、石材、噴漆、玻璃、鐵件、皮革、系統、鈦金
風格:現代簡約風
格局:3房2廳3衛
屋況:新屋
建設公司:浤圃建設
立即諮詢